| 価格 | 5,780万円 ![]() |
||||
|---|---|---|---|---|---|
| 所在地 | 神奈川県川崎市多摩区南生田1丁目
この地域周辺の物件を見る |
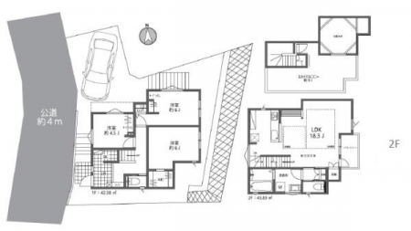
土地面積 | 128.71m² (38.93坪) | 建物面積 | 90.76u |
| 築年月 | 2025年10月築 | 間取り | 3LDK (洋室4.5/洋室6/洋室6/LDK18.3) | ||
| 交通 |
小田急小田原線 読売ランド前 徒歩12分
小田急小田原線 新百合ヶ丘 徒歩35分 JR南武線 稲田堤 徒歩45分 |
||||
電話をかける(携帯・PHS可)
042-379-8845
「ホームページを見た」とお伝え下さい。
お問い合わせ番号をお伝えください
RHS-132401-6305
| 特徴 |
|
|---|
| 採光面 | 南 | 構造/階数 | 木造/地上2階建 |
|---|---|---|---|
| 建ぺい率 | 50(%) | 容積率 | 80(%) |
| 駐車場 | 有 | 現況/引渡し | 新築/相談 |
| 土地権利 | 所有権 | 私道負担面積 | - |
| 接道状況 | 接道: 西 公道 道路幅: 4m | 用途地域 |
第一種低層住居専用地域
|
| セットバック | - | 法令上の制限 | 高度地区;宅地造成工事規制区域;日影制限有;壁面後退有 |
| 地目 | 宅地 | 地勢 | |
| 建築確認番号 | 第KBI-YKH23-10-3951号 | 都市計画 | 市街化区域 |
| 取引態様 | 仲介 | ||
| 情報更新日 | 2025年12月13日 | 次回更新日 | 2025年12月27日 |
| 小学校区 | 川崎市立南生田小学校 (神奈川県川崎市多摩区) この学区の他の物件を見る |
中学校区 | 南生田中学校 (神奈川県川崎市多摩区) この学区の他の物件を見る |
|---|
電話をかける(携帯・PHS可)
042-379-8845
「ホームページを見た」とお伝え下さい。
お問い合わせ番号をお伝えください
RHS-132401-6305
| 価格 | 万円 | ||
|---|---|---|---|
| 年利率 | % |
||
| ボーナス払い | 返済年数 | ||
| 頭金 | 直接入力する | 万円 | |

毎月のご返済額 |
ボーナス(×年2回) |
物件価格5,780万円 |
電話をかける(携帯・PHS可)
042-379-8845
「ホームページを見た」とお伝え下さい。
お問い合わせ番号をお伝えください
RHS-132401-6305
BBQやプールなど色々楽しめるスカイバルコニー付き新築戸建。2階にリビングを配置した3LDKタイプ。
勾配天井で開放感がございます。18.3帖のLDKには床暖房付きです。