| 価格 | 4,980万円値下がり ![]() |
||||
|---|---|---|---|---|---|
| 所在地 | 神奈川県川崎市多摩区宿河原4丁目
この地域周辺の物件を見る |
土地面積 | 47.67m² (14.42坪) | 建物面積 | 87.94u |
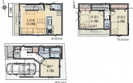
| 築年月 | 2025年9月築 | 間取り | 2SLDK (S4.7/LDK15/洋室6.1/洋室6) | ||
| 交通 |
JR南武線 宿河原 徒歩5分
JR南武線 登戸 徒歩16分 小田急小田原線 登戸 徒歩17分 |
||||
電話をかける(携帯・PHS可)
042-379-8845
「ホームページを見た」とお伝え下さい。
お問い合わせ番号をお伝えください
RHS-132401-6307
| 特徴 |
|
|---|
| 採光面 | 西 | 構造/階数 | 木造/地上3階建 |
|---|---|---|---|
| 建ぺい率 | 60(%) | 容積率 | 200(%) |
| 駐車場 | 有 | 現況/引渡し | 新築/即時 |
| 土地権利 | 所有権 | 私道負担面積 | - |
| 接道状況 | 接道: 南西 公道 道路幅: 4m | 用途地域 |
第一種中高層住居専用地域
|
| セットバック | - | 法令上の制限 | 高度地区;準防火地域;景観地区 |
| 地目 | 宅地 | 地勢 | |
| 建築確認番号 | 第KBI−YKH25-10-0817号 | 都市計画 | 市街化区域 |
| 取引態様 | 仲介 | ||
| 情報更新日 | 2025年10月31日 | 次回更新日 | 2025年11月14日 |
| 小学校区 | 川崎市立稲田小学校 (神奈川県川崎市多摩区) この学区の他の物件を見る |
中学校区 | 稲田中学校 (神奈川県川崎市多摩区) この学区の他の物件を見る |
|---|
電話をかける(携帯・PHS可)
042-379-8845
「ホームページを見た」とお伝え下さい。
お問い合わせ番号をお伝えください
RHS-132401-6307
| 価格 | 万円 | ||
|---|---|---|---|
| 年利率 | % |
||
| ボーナス払い | 返済年数 | ||
| 頭金 | 直接入力する | 万円 | |

毎月のご返済額 |
ボーナス(×年2回) |
物件価格4,980万円 |
![]() |
![]() |
川崎市多摩区宿河原4丁目
4980万円〜6380万円 |
電話をかける(携帯・PHS可)
042-379-8845
「ホームページを見た」とお伝え下さい。
お問い合わせ番号をお伝えください
RHS-132401-6307
即内見可能な完成済み物件。実際に見て新生活をイメージできます。プライベート性の高い2階にリビング。
駅まで徒歩5分。2駅2路線使えてアクセス良好。床暖房付きのLDKです。