| 価格 | 5,280万円 ![]() |
||||
|---|---|---|---|---|---|
| 所在地 | 神奈川県川崎市麻生区王禅寺東4丁目
この地域周辺の物件を見る |
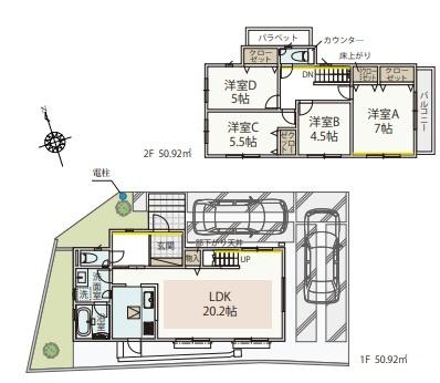
土地面積 | 129.08m² (39.05坪) | 建物面積 | 101.84u |
| 築年月 | 2025年11月築 | 間取り | 4LDK (LDK20.2/洋室7/洋室4.5/洋室5.5/洋室5) | ||
| 交通 |
小田急小田原線 柿生 徒歩19分
小田急多摩線 新百合ヶ丘 徒歩34分/白山神社 停歩4分 小田急小田原線 百合ヶ丘 徒歩39分 |
||||
電話をかける(携帯・PHS可)
042-379-8845
「ホームページを見た」とお伝え下さい。
お問い合わせ番号をお伝えください
RHS-132401-6348
| 特徴 |
|
|---|
| 採光面 | - | 構造/階数 | 木造/地上2階建 |
|---|---|---|---|
| 建ぺい率 | 40(%) | 容積率 | 80(%) |
| 駐車場 | 有 | 現況/引渡し | 新築/相談 |
| 土地権利 | 所有権 | 私道負担面積 | - |
| 接道状況 | 接道: 北 公道 道路幅: 4.5m 接道: 西 公道 道路幅: 16m |
用途地域 |
第一種低層住居専用地域
|
| セットバック | - | 法令上の制限 | - |
| 地目 | 宅地 | 地勢 | |
| 建築確認番号 | 第KBI-SGM25-10-2017号 | 都市計画 | 市街化区域 |
| 取引態様 | 仲介 | ||
| 情報更新日 | 2025年12月05日 | 次回更新日 | 2025年12月19日 |
| 小学校区 | 川崎市立真福寺小学校 (神奈川県川崎市麻生区) この学区の他の物件を見る |
中学校区 | 王禅寺中央中学校 (神奈川県川崎市麻生区) この学区の他の物件を見る |
|---|
電話をかける(携帯・PHS可)
042-379-8845
「ホームページを見た」とお伝え下さい。
お問い合わせ番号をお伝えください
RHS-132401-6348
| 価格 | 万円 | ||
|---|---|---|---|
| 年利率 | % |
||
| ボーナス払い | 返済年数 | ||
| 頭金 | 直接入力する | 万円 | |

毎月のご返済額 |
ボーナス(×年2回) |
物件価格5,280万円 |
![]() |
![]() |
川崎市麻生区王禅寺東4丁目
4980万円〜5280万円 |
電話をかける(携帯・PHS可)
042-379-8845
「ホームページを見た」とお伝え下さい。
お問い合わせ番号をお伝えください
RHS-132401-6348
2025年11月完成予定。床暖房付き・広々LDK20帖超の角住戸。庭とカースペース2台完備。
床暖房・食洗機・浴室暖房乾燥機・シャワートイレ・浄水器一体型水栓・宅配BOX付き