| 価格 | 6,280万円 ![]() |
||||
|---|---|---|---|---|---|
| 所在地 | 神奈川県川崎市麻生区高石2丁目
この地域周辺の物件を見る |
土地面積 | 206.36m² (62.42坪) | 建物面積 | 108.06u |
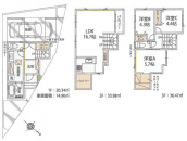
| 築年月 | 2025年9月築 | 間取り | 4LDK (LDK18.1/洋室5.2/洋室5.2/洋室5.2/洋室8.2) | ||
| 交通 |
小田急小田原線 読売ランド前 徒歩13分
小田急小田原線 百合ヶ丘 徒歩14分 小田急多摩線 新百合ヶ丘 徒歩25分 |
||||
電話をかける(携帯・PHS可)
042-379-8845
「ホームページを見た」とお伝え下さい。
お問い合わせ番号をお伝えください
RHS-132401-6361
| 特徴 |
|
|---|
| 採光面 | 南 | 構造/階数 | 木造/地上2階建 |
|---|---|---|---|
| 建ぺい率 | 50(%) | 容積率 | 100(%) |
| 駐車場 | 有 | 現況/引渡し | 新築/相談 |
| 土地権利 | 所有権 | 私道負担面積 | - |
| 接道状況 | 接道: 北 公道 道路幅: 4m 接道: 南西 公道 道路幅: 3.4m |
用途地域 |
第一種低層住居専用地域
|
| セットバック | - | 法令上の制限 | - |
| 地目 | 宅地 | 地勢 | |
| 建築確認番号 | 第HPA-25-02576-1号 | 都市計画 | - |
| 取引態様 | 仲介 | ||
| 情報更新日 | 2025年12月05日 | 次回更新日 | 2025年12月19日 |
| 小学校区 | 川崎市立西生田小学校 (神奈川県川崎市麻生区) この学区の他の物件を見る |
中学校区 | 西生田中学校 (神奈川県川崎市麻生区) この学区の他の物件を見る |
|---|
電話をかける(携帯・PHS可)
042-379-8845
「ホームページを見た」とお伝え下さい。
お問い合わせ番号をお伝えください
RHS-132401-6361
| 価格 | 万円 | ||
|---|---|---|---|
| 年利率 | % |
||
| ボーナス払い | 返済年数 | ||
| 頭金 | 直接入力する | 万円 | |

毎月のご返済額 |
ボーナス(×年2回) |
物件価格6,280万円 |
電話をかける(携帯・PHS可)
042-379-8845
「ホームページを見た」とお伝え下さい。
お問い合わせ番号をお伝えください
RHS-132401-6361
日当たり良好な角地に建つ人工芝の庭付きの住まい。収納豊富で設備も充実した快適空間。カースペース2台。
パントリーやシューズインクローゼット、ウォークインクローゼットなど収納豊富。