| 価格 | 5,480万円 ![]() |
||||
|---|---|---|---|---|---|
| 所在地 | 神奈川県川崎市麻生区百合丘1丁目
この地域周辺の物件を見る |
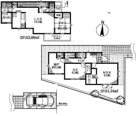
土地面積 | 139.02m² (42.05坪) | 建物面積 | 104.33u |
| 築年月 | 2026年4月築 | 間取り | 3SLDK (洋室8.5/洋室6/S5.2/LDK16.5/和室5.2) | ||
| 交通 |
小田急小田原線 百合ヶ丘 徒歩8分
小田急小田原線 新百合ヶ丘 徒歩15分 小田急小田原線 読売ランド前 徒歩21分 |
||||
電話をかける(携帯・PHS可)
042-379-8845
「ホームページを見た」とお伝え下さい。
お問い合わせ番号をお伝えください
RHS-132401-6617
| 特徴 |
|
|---|
| 採光面 | 南 | 構造/階数 | 木造/地上2階建 |
|---|---|---|---|
| 建ぺい率 | 50(%) | 容積率 | 100(%) |
| 駐車場 | 有 | 現況/引渡し | 建築中/相談 |
| 土地権利 | 所有権 | 私道負担面積 | - |
| 接道状況 | 接道: 東 公道 道路幅: 4.98m | 用途地域 |
第一種低層住居専用地域
|
| セットバック | - | 法令上の制限 | - |
| 地目 | 宅地 | 地勢 | |
| 建築確認番号 | 第KBI-YKH25-10-2288号 | 都市計画 | 市街化区域 |
| 取引態様 | 仲介 | ||
| 情報更新日 | 2026年04月14日 | 次回更新日 | 2026年04月28日 |
| 小学校区 | 川崎市立百合丘小学校 (神奈川県川崎市麻生区) この学区の他の物件を見る |
中学校区 | 西生田中学校 (神奈川県川崎市麻生区) この学区の他の物件を見る |
|---|
電話をかける(携帯・PHS可)
042-379-8845
「ホームページを見た」とお伝え下さい。
お問い合わせ番号をお伝えください
RHS-132401-6617
| 価格 | 万円 | ||
|---|---|---|---|
| 年利率 | % |
||
| ボーナス払い | 返済年数 | ||
| 頭金 | 直接入力する | 万円 | |

毎月のご返済額 |
ボーナス(×年2回) |
物件価格5,480万円 |
![]() |
![]() |
川崎市麻生区百合丘1丁目
5480万円〜5880万円 |
電話をかける(携帯・PHS可)
042-379-8845
「ホームページを見た」とお伝え下さい。
お問い合わせ番号をお伝えください
RHS-132401-6617
2026年4月完成予定。2路線利用可。太陽光パネル搭載。全室南向き、プライバシー性の高い2階リビング
小学校やスーパー、クリニックが近く子育て世帯にも安心の住環境。豊富な収納。