| 価格 | 5,899万円 ![]() |
||||
|---|---|---|---|---|---|
| 所在地 | 神奈川県川崎市多摩区南生田6丁目
この地域周辺の物件を見る |
土地面積 | 132.7m² (40.14坪) | 建物面積 | 105.16u |
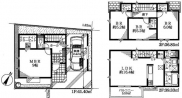
| 築年月 | 2026年5月築 | 間取り | 4LDK (LDK20.2/洋室5.2/洋室5.2/洋室5/洋室8.5) | ||
| 交通 |
小田急小田原線 生田 徒歩20分/長沢団地 バス6分 停歩2分
小田急小田原線 新百合ヶ丘 徒歩44分 小田急多摩線 新百合ヶ丘 徒歩44分 |
||||
電話をかける(携帯・PHS可)
042-379-8845
「ホームページを見た」とお伝え下さい。
お問い合わせ番号をお伝えください
RHS-132401-6681
| 特徴 |
|
|---|
| 採光面 | 西 | 構造/階数 | 木造/地上2階建 |
|---|---|---|---|
| 建ぺい率 | 50(%) | 容積率 | 100(%) |
| 駐車場 | 有 | 現況/引渡し | 建築中/相談 |
| 土地権利 | 所有権 | 私道負担面積 | - |
| 接道状況 | 接道: 北 公道 道路幅: 6m 接道: 西 公道 道路幅: 6m |
用途地域 |
第一種低層住居専用地域
|
| セットバック | - | 法令上の制限 | 高度地区;宅地造成工事規制区域;高さ最高限度有;日影制限有 |
| 地目 | 宅地 | 地勢 | |
| 建築確認番号 | 第25UDI1W建10343号 | 都市計画 | 市街化区域 |
| 取引態様 | 仲介 | ||
| 情報更新日 | 2026年05月09日 | 次回更新日 | 2026年05月23日 |
| 小学校区 | 川崎市立南生田小学校 (神奈川県川崎市多摩区) この学区の他の物件を見る |
中学校区 | 南生田中学校 (神奈川県川崎市多摩区) この学区の他の物件を見る |
|---|
電話をかける(携帯・PHS可)
042-379-8845
「ホームページを見た」とお伝え下さい。
お問い合わせ番号をお伝えください
RHS-132401-6681
| 価格 | 万円 | ||
|---|---|---|---|
| 年利率 | % |
||
| ボーナス払い | 返済年数 | ||
| 頭金 | 直接入力する | 万円 | |

毎月のご返済額 |
ボーナス(×年2回) |
物件価格5,899万円 |
電話をかける(携帯・PHS可)
042-379-8845
「ホームページを見た」とお伝え下さい。
お問い合わせ番号をお伝えください
RHS-132401-6681
陽当り・風通しに優れた角地。高断熱・省エネ設備を備えたZEH水準省エネ住宅。家事動線良好な4LDK。
家族が自然に顔を合わせるリビングイン階段で、絆を育む暮らし。収納豊富。