| 価格 | 4,180万円 ![]() |
||||
|---|---|---|---|---|---|
| 所在地 | 神奈川県川崎市多摩区長沢2丁目
この地域周辺の物件を見る |
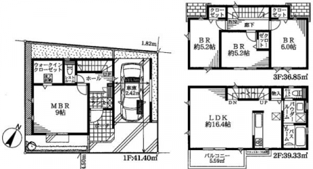
土地面積 | 75.6m² (22.87坪) | 建物面積 | 117.58u |
| 築年月 | 2026年4月築 | 間取り | 4LDK (洋室9/LDK16.4/洋室5.2/洋室5.2/洋室6) | ||
| 交通 |
小田急小田原線 生田 徒歩25分/盛源寺 バス11分 停歩2分
小田急小田原線 読売ランド前 徒歩37分 小田急小田原線 向ヶ丘遊園 徒歩39分 |
||||
電話をかける(携帯・PHS可)
042-379-8845
「ホームページを見た」とお伝え下さい。
お問い合わせ番号をお伝えください
RHS-132401-6684
| 特徴 |
|
|---|
| 採光面 | 東南 | 構造/階数 | 木造/地上3階建 |
|---|---|---|---|
| 建ぺい率 | 60(%) | 容積率 | 200(%) |
| 駐車場 | 有 | 現況/引渡し | 新築/相談 |
| 土地権利 | 所有権 | 私道負担面積 | - |
| 接道状況 | 接道: 東南 公道 道路幅: 4.5m | 用途地域 |
第一種住居地域
|
| セットバック | - | 法令上の制限 | - |
| 地目 | 宅地 | 地勢 | |
| 建築確認番号 | 第2025SBC-確01169Y号 | 都市計画 | 市街化区域 |
| 取引態様 | 仲介 | ||
| 情報更新日 | 2026年04月21日 | 次回更新日 | 2026年05月05日 |
| 小学校区 | 川崎市立南生田小学校 (神奈川県川崎市多摩区) この学区の他の物件を見る |
中学校区 | 南生田中学校 (神奈川県川崎市多摩区) この学区の他の物件を見る |
|---|
電話をかける(携帯・PHS可)
042-379-8845
「ホームページを見た」とお伝え下さい。
お問い合わせ番号をお伝えください
RHS-132401-6684
| 価格 | 万円 | ||
|---|---|---|---|
| 年利率 | % |
||
| ボーナス払い | 返済年数 | ||
| 頭金 | 直接入力する | 万円 | |

毎月のご返済額 |
ボーナス(×年2回) |
物件価格4,180万円 |
![]() |
![]() |
川崎市多摩区長沢2丁目
4180万円〜4280万円 |
電話をかける(携帯・PHS可)
042-379-8845
「ホームページを見た」とお伝え下さい。
お問い合わせ番号をお伝えください
RHS-132401-6684
2026年4月中旬完成予定の新築戸建全5棟。WIC付きで収納充実、ガレージ完備の快適な住まい
スーパーやコンビニ、大学病院が近く、日々の生活に便利な住環境。