川崎市多摩区長沢2丁目新築戸建4号棟 神奈川県川崎市多摩区長沢2丁目|4,280万円の新築一戸建て|分譲住宅や新築物件|センチュリー21グローバルホーム

新築一戸建て

川崎市多摩区長沢2丁目新築戸建4号棟NEW
お気に入り
価格 4,280万円 ローンシミュレーション
所在地 神奈川県川崎市多摩区長沢2丁目
この地域周辺の物件を見る
土地面積 75.58m² (22.86坪) 建物面積 120.06u
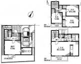
築年月 2026年5月築 間取り 3SLDK (S8/LDK16.5/洋室4.5/洋室6/洋室6.5)
交通
小田急小田原線 生田 徒歩25分/盛源寺 バス11分 停歩2分
小田急小田原線 読売ランド前 徒歩37分
小田急小田原線 向ヶ丘遊園 徒歩39分
ここがおすすめ

2026年5月中旬完成予定新築戸建全5棟。収納豊富、ゆとりあるガレージを備えた、快適に暮らせる住まい
スーパーやコンビニ、大学病院が近く、日々の生活に便利な住環境。


  • 現地外観写真 -
  • 間取り図 -
  • 区画図 -
  • 周辺環境 -
  • 周辺環境 -
  • 周辺環境 -
  • 周辺環境 -
  • 周辺環境 -
  • 周辺環境 -
  • 周辺環境 -
  • 周辺環境 -
  • 周辺環境 -
お問い合わせ、資料請求、見学のお申し込みはこちらから

電話をかける(携帯・PHS可)
042-379-8845
「ホームページを見た」とお伝え下さい。

お問い合わせ番号をお伝えください
RHS-132401-6686

内見予約
お問合せ

セールスポイント

特徴
  • フローリング
  • システムキッチン
  • カウンターキッチン
  • 追い焚き
  • 浴室乾燥機
  • ガスコンロ
  • コンロ三口
  • バルコニー
  • TVドアホン
  • 本下水
  • 都市ガス
  • 新着物件

物件概要

採光面 東南 構造/階数 木造/地上3階建
建ぺい率 60(%) 容積率 200(%)
駐車場 現況/引渡し 建築中/相談
土地権利 所有権 私道負担面積 -

接道状況 接道: 北西 公道 道路幅: 4.5m 用途地域
第一種住居地域
セットバック - 法令上の制限 -
地目 宅地 地勢
建築確認番号 第2025SBC-確01171Y号 都市計画 市街化区域
取引態様 仲介
情報更新日 2026年04月21日 次回更新日 2026年05月05日
※各種情報と差異がある場合は現況優先となります

学区情報

小学校区 川崎市立南生田小学校
(神奈川県川崎市多摩区)
この学区の他の物件を見る
中学校区 南生田中学校
(神奈川県川崎市多摩区)
この学区の他の物件を見る
※物件情報の学区情報について
当サイト物件情報に記載されております通学区域(学区)情報は、国土数値情報ダウンロードサービスが提供する小学校区データ【2016年度】及び中学校区データ【2016年度】を元に加工したものですので、記載情報が現在の学区域と異なる場合がございます。
国土数値情報ダウンロードサービスのWEBサイト上で記述通り、データは必ずしも正確とは言えません。また、通学区域(学区)は毎年見直しの対象となりますので、そちらを踏まえ学区情報は参考としてご活用下さい。
お問い合わせ、資料請求、見学のお申し込みはこちらから

電話をかける(携帯・PHS可)
042-379-8845
「ホームページを見た」とお伝え下さい。

お問い合わせ番号をお伝えください
RHS-132401-6686

内見予約
お問合せ
希望物件リクエストはこちら

この物件でローンシミュレーションする

価格 万円
年利率
ボーナス払い 返済年数
頭金 直接入力する 万円

毎月のご返済額

ボーナス(×年2回)

物件価格

4,280万円
※返済金額はあくまでも目安です。

こちらの物件は複数区画の分譲地・他にも販売中のマンションがあります。

川崎市多摩区長沢2丁目
4180万円〜4280万円
  • こちらの物件を見たお客様はこんな物件もチェックしています。
  • お気に入り物件

電話をかける(携帯・PHS可)
042-379-8845
「ホームページを見た」とお伝え下さい。

お問い合わせ番号をお伝えください
RHS-132401-6686

内見予約
お問合せ

お問い合わせ

お問い合わせ内容
お問合せ内容必須
【備考欄】
詳細な見学ご希望時間、ご質問、ご希望条件などがございましたらお聞かせ下さい。
(2000文字以内)
お客様情報
お名前必須
連絡先必須 メールアドレス

※ご記入いただいたメールアドレス宛てに、お問合せ内容の確認メールをお送りいたします。
※Yahoo!メールなどのフリーメールをご利用の場合、迷惑メールフォルダに入る場合があります。
 迷惑メールのフォルダ・設定等をご確認下さい。
電話番号
FAX(任意)
※ご入力いただいたお客さまの個人情報は、「個人情報の取扱いについて」に基づき適正に取り扱います。
必ずお読みになり、同意の上お問い合わせください。

お気軽にお問い合わせください

042-379-8845
物件番号 RHS-132401-6686
※「ホームページを見た」
とお伝え下さい。